News center
150-0292-2428
全国服务热线
新闻中心
您的当前位置:网站首页 >> 新闻中心 >> 详情
新闻中心
3人死亡!天津“6·18”中水池爆炸事故调查报告出炉!
来源:康美净环保水处理设备 | 作者:康美净环保 | 发布时间: 2022-01-21 | 950 次浏览 | 🔊 点击朗读正文 ❚❚ | 分享到:
2021 年 6 月 18 日 9 时 4 分,位于津南区咸水沽镇鑫达 工业园的天津广聚源纸业集团有限公司院内,维修人员在对 1# 中水池溢流管进行气割动火作业过程中发生爆炸,造成 3 人死亡,2 人重伤,1 人轻伤,直接经济损失(不含事故处罚)516.76 万元人民币。


一、基本情况


(一) 事故单位基本情况

天津广聚源纸业集团有限公司( 以下简称广聚源公司) 成立于 2005 年 3 月 24 日,企业类型: 有限责任公司, 经营范围: 机制纸、纸板的制造,草浆制造及销售。

(二) 涉事水池基本情况

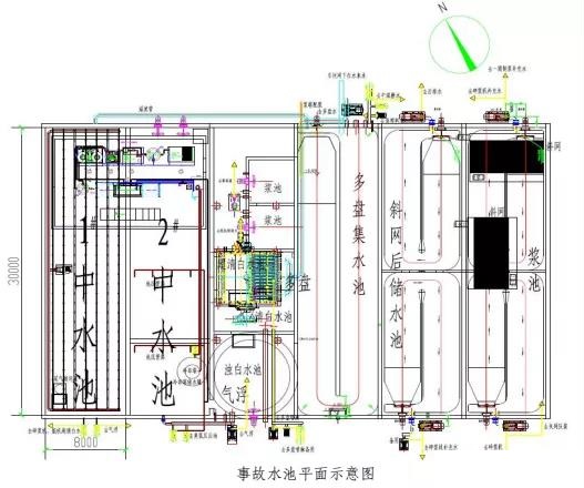
广聚源公司厂区中部东侧共有 6 个水池,始建于 2006  年 6 月 30 日,建筑面积 1500 余平方米,东邻化淀粉工段和地下水池,南邻切纸车间、车队存车修车处和纸机备品仓库,西邻洗塑料皮场所,北邻制浆车间和造纸车间。水池整体长约 51 米,宽约 30 米,高约 5 米,壁厚约 0.4 米,其内部被水泥墙分隔为 6 个独立的水池,自西向东依次为:1#中水池、2#中水池、多盘池、多盘集水池、斜网后储水池、浆池。其中,多盘池内自北向南又被水泥墙分为浆池、超清白水池、清白水池、浊白水池(用于储存生产车间的纸机网下白水经过多盘分离出的浊白水) 。浊白水池与多盘集水池间的隔墙上有一矩形溢流口(长约1.2米,高约0.5米,距池底约5.4米) 。水池西侧墙壁上写有大字“严禁烟火”。

经广聚源公司办公会商议决定,由总工程师王文龙牵头设计,对 1#中水池和2#中水池进行改造,增加臭氧和曝气等水处理设备,并于 2020 年 11 月 28 日完成最后一次施工改造,在 1#中水池和2#中水池的池顶浇筑约 0.2 米厚的钢筋水泥池盖,封盖后形成了 2 个密闭水池(每个水池内部长约 30 米,宽约 8 米,高约 6.2 米),总容积为 2976 立方米; 在 2个水池隔断墙北侧顶部设有矩形溢流口(长约 1 米,高约 0.5 米,距池底约 5 米) 。在 1#中水池池顶的西南角和2#中水池池顶的东北角各有 1 个矩形人孔(长 1.4 米,宽 0.8 米), 加盖了薄钢板。在2#中水池与浊白水池间的隔墙上并排铣了 2 个溢流孔( 直径 0.3 米,距南侧池壁约 1.5 米,距池底约 5.7 米) ,并将浊白水池与多盘集水池间的隔墙上的矩形溢流口用钢板封堵,使得浊白水池的水流向2#中水池,经溢流孔流向 1#中水池,通过离心泵分别送至气浮机处理,或去往 污水处理车间进一步处理,或送至纸机直接回用。


(三) 涉事主要设备设施情况

1.曝气设备: 由罗茨风机、7 根曝气带及配套风管组成, 罗茨风机功率为 55 千瓦,设置在 1# 中水池池顶西侧中部,其出风 口分别与池顶南北两侧的主风管连接,每根主风管又 连接有 7 根支风管,通过池顶孔洞延伸至池底,南北一一相 对的支风管与曝气带分别连通,池底设有高约 0.2 米的支架 将 7 根曝气带托起。主要作用是通过风机将空气中的氧强制 向 1#中水池水体转移,防止池内悬浮体下沉,加强池内有机 物、微生物与溶解氧充分接触。

2.臭氧设备: 主要由空压机、空气储罐、冷干机组、吸 干机、制氧主机、氧气缓冲罐、臭氧发生器、板式换热器、 冷却塔、射流器、臭氧尾气破坏器及配套的电气控制设备组 成,总功率 234.7 千瓦,设置在 2 个中水池池顶北侧临边约  1.5 米处搭建的一间彩钢板房内。主要工艺流程是将空气吸 入空气压缩机形成压缩气体,经冷干机、吸干机冷却脱水后, 通入制氧主机分离出氧气; 氧气进入臭氧发生器后生成一定 浓度臭氧,经射流器与水预混,通过喷嘴注入2#中水池池底, 逸出的少量臭氧经尾气破坏器吸入处理后外排。主要用于2#   中水池浊白水的杀菌除臭。 臭氧尾气破坏装置有配套排风 机,该风机风量为每小时 263 立方米,对 1#中水池、2#中水 池进行一次换气需要 11.31 小时,即每小时换气 0.09 次。

(四) 事故发生时水池内水体情况

2021 年 4 月 25 日前后至爆炸发生时,浊白水池东侧多 盘集水池溢流 口的盲板被打开,该溢流 口较浊白水池西侧2# 中水池溢流孔低 0.3 米,且孔径更大,使得浊白水池水体大 量溢流至多盘集水池,仅有少量水体进入2#中水池(臭氧反 应池) ,同时,1#中水池曝气设备和2#中水池推动器停用,
臭氧设备间歇性开启,1#中水池内水体不定期向污水处理厂 输送。事故发生当日 8 时左右,1#中水池液位高度约 2.5 米。 经换算得出: 池内存水约 600 立方米,池内气相空间高度约 3.7 米,气相空间体积约为 888  立方米;2#中水池处于满水 溢流状态,2# 中水池内存水约 1200  立方米,气相空间体积 约为 288 立方米。

经天津市疾病预防控制中心和天津市生态环境监测中心对爆炸水池内水体检测,综合各项检测数据分析,该池水 中有机物和悬浮物含量高,且处于厌氧发酵状态, 已产生甲 烷、硫化氢和氨气等混合气体。

二、事故经过及救援情况


事故经过

2021 年 6 月 16 日 17 时许,广聚源公司制浆车间主任李 建军向制浆车间副主任成顺布置对1#中水池溢流管蝶阀维修的工作。

2021 年 6 月 18 日 7 时许,成顺让制浆车间操作班长王 世龙将维修1#中水池溢流管蝶阀的工作安排给制浆车间维修 工王利。早会后,王世龙安排王利和制浆车间操作工赵孔成进行该作业。

8 时许,王利到环安卫部找审批人孙宝兴办理动火作业 审批手续,孙宝兴未到现场核查便开具了二级动火票证。随 后王利到达 1#中水池北侧,对溢流管下部蝶阀处螺栓进行气 割动火作业,赵孔成负责监护。9 时 4 分,王利和赵孔成在 气割完螺栓后向东离开( 10 余秒后 1#、2#中水池发生爆炸时,
二人处于爆炸冲击波的盲区) ,溢流管内的沼气(主要成分 为甲烷) 因气割作业被点燃,后回火至封闭的池内,引发混 合气体爆炸。

事故造成 1#中水池南、西、北三侧的墙体分别向外侧倒塌,池顶炸飞,部分池顶被抛至多盘集水池及斜网后储水池 南侧。池顶上的设备被炸飞,散落于爆炸池子东侧、南侧和 西侧,其中西北角的制氧机向东南方向最远被抛至 58 米外 的浆池东南侧地面。南侧墙体及墙外离心泵被推至南侧切纸 车间。1#中水池西南角的消防栓被墙体压断,消防水池内的 约 1000 立方米水几乎被放空。1#中水池的水体混着消防水流 向四周,水体呈黑色,南至汽车维修车间,西至洗塑料皮场 所,北至制浆车间和造纸一车间,东至厂区围墙,面积约 4000 平方米,平均水深约 0. 15 米。2#中水池的北侧池顶被炸塌,顶 上空气储罐被抛至多盘集水池内南侧; 池顶西南角被撕开。

同时,事故造成在 1# 中水池西侧墙体外维修柴油三轮车 的外委操作人员张永生、青铁军 2 人受墙体砸压创伤性休克 死亡;1#中水池东侧(约 70 米) 的化淀粉工段厂房内,爆炸 产生的水泥块砸中正在平台(2.45 米高) 上作业的本单位操 作工刘长波头部致颅脑损伤死亡。另外,爆炸产生的水泥块 还造成 1# 中水池东侧( 约 70 米) 进行作业的本单位操作工 丛会超右侧肩胛骨粉碎性骨折、气血胸(重伤) ;1# 中水池 东侧( 约 12 米) 多盘平台楼梯处的陈立江右足跟骨骨折( 重 伤) ;1#中水池西侧天津三共包装制品有限公司纸车间(约 210 米) 内的作业人员赵春艳右腿软组织撕裂伤(轻伤) 。

经天津测震台网测定,事故属于非天然(疑爆) 事件, 震级为 M0.6 级,估算本次爆炸当量约为 0. 15 吨。

三、事故造成的人员伤亡及直接经济损失情况


(一) 死亡人员情况

3 人死亡

(二) 直接经济损失

事故调查组依据《企业职工伤亡事故经济损失统计标准》 (GB6721- 1986 )的有关规定,确认该事故造成的直接经济损失(不含事故罚款) 为 516.76 万元人民币。


四、事故原因及性质


(一) 直接原因

事故调查组根据有关专家现场勘验、技术鉴定结果,经 综合分析认定: 维修人员在对 1#中水池溢流管进行气割动火 作业过程中,点燃了溢流管内的沼气(主要成分为甲烷) , 回火至封闭的池内,引发混合气体爆炸是事故发生的直接原因。

(二) 爆炸破坏性增大的原因

事故水池泄压面积不足。1# 、2# 中水池在空池的情况下 泄压面积应为 386.29 平方米; 事故发生时,积聚着沼气的实际气相空间为 1176 立方米,此状态下泄压面积至少应为 248.48 平方米; 实际泄压面积为 2.24 平方米,远小于所需的 泄压面积。爆炸产生的高温、高压产物无法及时向外释放, 冲击波在密闭空间内壁上发生反射,相互叠加使超压峰值增大,增大了水池内沼气爆炸的破坏性。

(三) 事故发生单位存在的主要问题

1.违规进行动火作业。一是动火作业审批人未到动火作 业现场核查动火项目、动火人资格、动火区域安全条件、气 象条件、戒备器材配备、监护人设置等情况,违规签发《动 火作业表》 ;二是动火作业审批人未按照本单位《动火作业表》 中“审批意见”的要求,将本应作为一级动火作业的“1# 中水池溢流管气割动火作业”按照二级动火作业进行审批;三是现场作业人员动火前,未切断与动火部位的设备相连的其他设备和管道。

2.未对发生事故的 1# 中水池采取有效的安全防护措施且未进行风险辨识和风险评价。2020 年将原本用于存放纸浆、木材及浸泡废纸的敞开式 1# 、2#中水池使用钢筋混凝土进行 封顶施工,一是未安装符合国家标准、行业标准的通风系统, 二是未开展风险辨识和风险评价。 

3. 隐患排查治理落实不到位。一是未采取技术、管理措 施及时发现并消除存在的事故隐患; 二是开展隐患排查治理的频次和组织人员不符合规定。

4.未落实消防安全职责。一是作为消防重点单位,未实 行每日防火巡查,未建立防火巡查记录; 二是对动火作业人 员岗前防火防爆教育培训学时不足且车间及班组级消防安 全教育未包含消防相关内容; 三是日常检查中,将防火防爆内容与安全生产内容合并检查,未进行防火防爆工作专项检查。

5.未健全安全生产责任制,未制定相关安全操作规程。 一是未根据实际岗位调整及时健全本单位安全生产责任制; 二是内设部门变动后未及时修订安全生产责任制; 三是未制 定曝气机等涉事设备设施的安全操作规程,致使从业人员无法掌握本岗位的安全操作技能。 

6.未落实安全教育培训制度。一是采用新工艺、新技术、 新材料或者使用新设备,未对从业人员进行专门的安全生产 教育和培训; 二是动火作业前未组织有关人员学习安全消防 知识、未向其介绍所采取的安全措施。

7.在事故调查中作伪证或者指使他人作伪证。事故发生 后,在接受调查询问过程中,广聚源公司主要负责人李相臣、 生产部长李运龙、制浆车间主任李建军、污水处理车间主任 李东等有关人员串供、订立攻守同盟,采用作伪证及指使他人作伪证的方式对抗事故调查,一度误导了事故调查重点方 向,严重干扰、妨碍了调查工作的开展。

(四) 事故性质


事故调查组认定,天津广聚源纸业集团有限公司“6·18” 中水池爆炸较大事故是一起生产安全责任事故。